Меню
Новые сообщения · Участники · Правила форума · Поиск · RSS
  • Страница 1 из 1
  • 1
Модератор форума: grabovski, Андреи  
как золесть в кабину с центральным замком
Гость
Группа: Гости
 
неисправноть центрального замка закривает но не откривает как золесть . в кабину с ключа не откривается . вольва 1999г фш12
aleksjud
Ушел,но обещал вернутся.
Группа: Друзья
Сообщений: 2051
Репутация: 38
Статус: Оффлайн
 
Гость, у тебя сигналка или родной ключ?может на ключе или на брелке кнопка на открытие не работает.попробуй другой ключ или другой брелок от сиги.
я ушел. кому если буду нужен пишите на почту. адресс есть.
Fire
Генералиссимус
Группа: Пользователи
Сообщений: 1706
Репутация: 29
Статус: Оффлайн
 
Если защелка в виде грипка то шнурком , если в ручке то проволокой . Но ожимать рамку стекла на сантиметр по любому прийдется. Это так сказать щадящий вариант, не забывай про тряпочку чтоб не испортить окраску
Ярославль. Ремонтирую лично.
heretic
Рядовой
Группа: Пользователи
Сообщений: 1
Репутация: 0
Статус: Оффлайн
 
Такая-же история случилась лет 15-20 назад с ваз 2108. Удалось подцепить грибок защелки , алюминиевой вилкой , проткнув боковое уплотнение стекла.
Я ненавижу сплетни в виде версий
burov-vyazma
Полковник
Группа: Пользователи
Сообщений: 203
Репутация: 14
Статус: Оффлайн
 
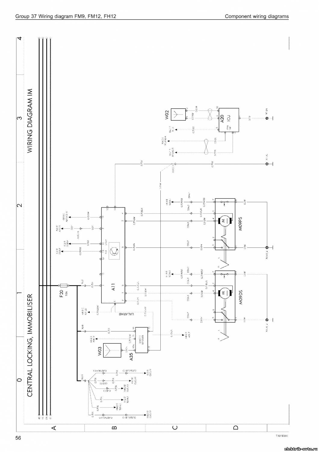
А ключом замок открывается?Схему приложу на всякий случай.УДАЧИ!
Прикрепления: 5103022.jpg (103.7 Kb)

Не ошибается тот,кто ничего не делает!
aleksjud
Ушел,но обещал вернутся.
Группа: Друзья
Сообщений: 2051
Репутация: 38
Статус: Оффлайн
 
burov-vyazma, он вроде написал нормально с ключа неоткрываеться..
я ушел. кому если буду нужен пишите на почту. адресс есть.
Гость
Группа: Гости
 
Стекло разбей да залесь, вот делов -то
kleoalex
Майор
Группа: Пользователи
Сообщений: 94
Репутация: 2
Статус: Оффлайн
 
МОДЕЛЬ МАШИНЫ КОНКРЕТНО?неисправноть центрального замка закривает но не откривает как золесть . в кабину с ключа не откривается . вольва 1999г фш12
burov-vyazma
Полковник
Группа: Пользователи
Сообщений: 203
Репутация: 14
Статус: Оффлайн
 
kleoalex, машина VOLVO FH12.
Не ошибается тот,кто ничего не делает!
  • Страница 1 из 1
  • 1
Поиск: